Objektide otsing

Kõik LAAM Kinnisvara aktiivsed kinnisvaraobjektid.

Objektide otsing

-
-
-
-

Harju maakond, Keila linn, Linnuse tn 5-29

369 000 €
  • Tehingu tüüp: Müüa
  • Objekti nimetus: Ridaelamu boks
  • Objekti üldpind: 149.8 m2
  • Katastritunnus: 29601:001:0253
  • Tubade arv: 4
  • Korruseid kokku: 2
  • Maja materjal: Kivimaja
  • Ehituse aasta: 2026
  • Energiamärgis: A
Linnuse Kodud - Tule ela linnulaulu ja pargiroheluse keskel!
22 ridaelamuboksi valmivad 2026. aasta sügiseks.
Panipaik ja parkimine hinnas!

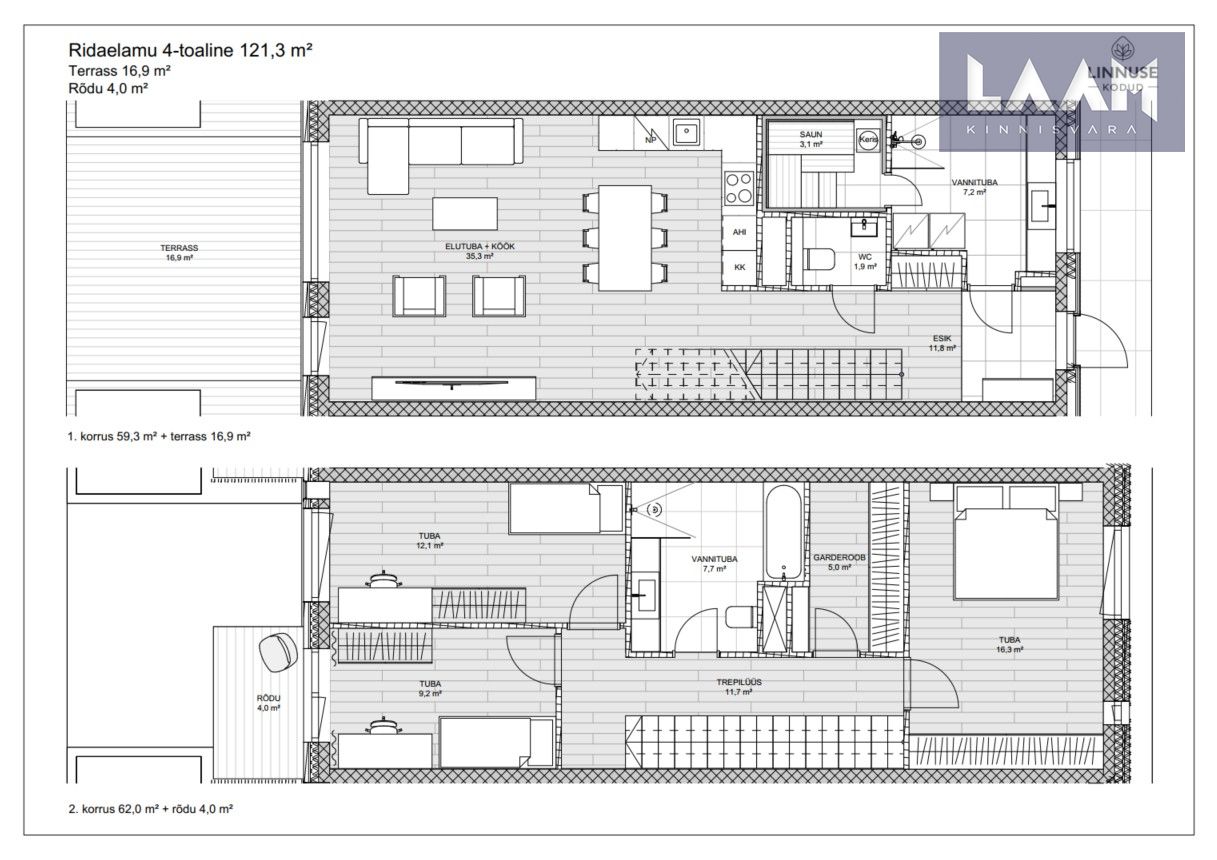
Ridaelamu boksi koosseisu kuulub:
Eluruumi pind 121,3 m²
Terrass 16,9 m²
Rõdu 4,0 m²
Panipaik 7,6 m² 4900eur
Parkimiskoht 4900eur

Linnuse tee 5 on uusarendus Keilas, kus on mõnus kodukoht peredele, kes armastavad rahu, loodust ja rohket avarust.
Ajaloolise Keila mõisapargi servale kerkivad 22 ridamaja ja 2 korrusmaja, kus päikeselisel terrassil saab nautida hommikukohvi kõrvale linnulaulu ning kogeda - Elu on ilus!
Lapsed mängivad turvaliselt looduskaunis pargis ja talletavad imelisi lapsepõlve mälestusi - See on kodu!
Kiire ja mugav rongiliiklus loob efektiivse ja täiendava transpordiühenduse kodu ja Tallinna vahel - juurde võidetud stressivaba aeg!

Miks valida Linnuse tee 5?
●Moodne ja energiatõhus elu - Maaküte (energiatõhusad soojuspuuraugud), A-energiaklass, päikesepaneelid ja optiline kaabel, elektriautode laadimispunktid.
●Kõrgema standardi järgi loodud kodud - 2,8 m kõrgusega laed, standardist kõrgemad aknad ja uksed, avarad ja valgusküllased ruumid, naturaalsed ja kvaliteetsed viimistlusmaterjalid.
●Disain tasakaalus elukeskkonnaga – Projekti inspiratsiooniks on Ying & Yang elufilosoofia – visuaalne ja ruumiline tasakaal elukeskkonna ja looduse vahel
●Logistiline mugavus – Koolid ja lasteaiad lähedal, rongiühendus Tallinnaga, parkimiskohad igale korterile.
●Keskkonnaga arvestav – säilitatud looduskooslus, keskkonnakeskne planeering, hoolikalt kavandatud haljastus, jalutusteed, rattaruumid.

Tutvu plaanidega, vali oma uus kodu ja alusta uut elu Keilas – looduse keskel, ajaloolise pargi serval!
Oleme Sinu jaoks olemas - võta meiega ühendust!
https://linnusekodud.ee/
Lea Juhandi
Lea Juhandi
Tiimijuht
 
  • 528 6544
  • See e-posti aadress on spämmirobotite eest kaitstud. Selle nägemiseks peab su veebilehitsejas olema JavaSkript sisse lülitatud.
  • Profiil